







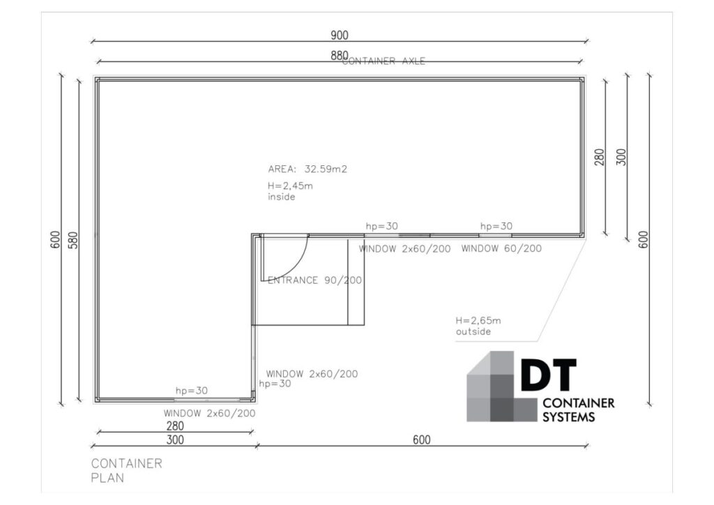
Pawilon ocieplany wykonany z płyt warstwowych styropianowych 100 mm o wymiarach 3 m x 6 m + 3 m x 6m ( kształt litery L ) wysokość wewnątrz 2,44 m.
Grubość profili zastosowanych w konstrukcji stalowej:
Obicie elewacja według sugestii klienta np. deska sosnowa, panele drewnopodobne itp.
Obróbka blacharska
Instalacja elektryczna
Drzwi techniczne
Witryny, okna z PCV lub aluminium ( można sugerować wymiary stolarki )
Kratka wentylacyjna
Wyposażenie kontenera na zamówienie
Możliwość realizacji projektów na zamówienie