DT CONTAINER SYSTEMS

DT L ANTRACYT

3 sierpnia, 2021
Czas czytania: 1 minuta

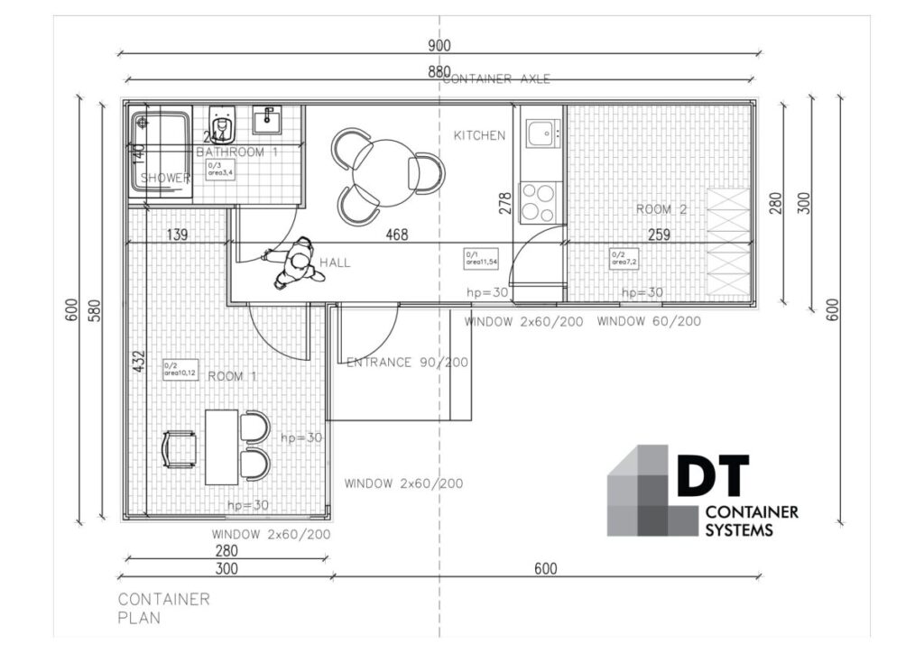
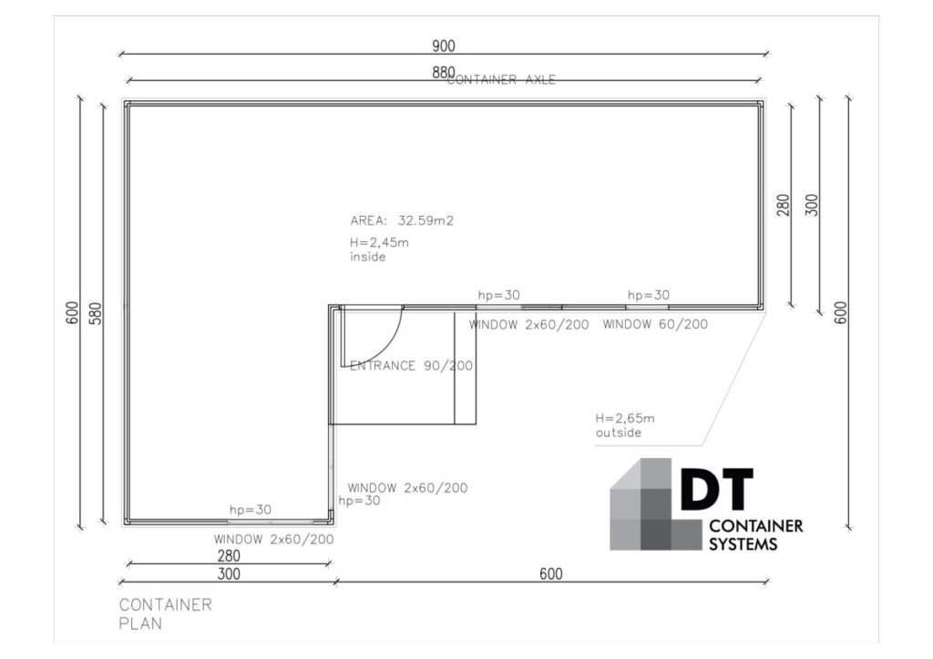
Pawilon ocieplany wykonany z płyt warstwowych styropianowych 100 mm o wymiarach 3 m x 6 m + 3 m x 6m ( kształt litery L ) wysokość wewnątrz 2,44 m.

Grubość profili zastosowanych w konstrukcji stalowej:

  • Profil stalowy pionowy 80x80x3 mm
  • Profil stalowy poziomy 100x40x3 mm
  • Kątowniki stalowy

Obicie elewacja według sugestii klienta np. deska sosnowa, panele drewnopodobne itp.

Obróbka blacharska

Instalacja elektryczna

Drzwi techniczne

Witryny, okna z PCV lub aluminium ( można sugerować wymiary stolarki )

Kratka wentylacyjna

Wyposażenie kontenera na zamówienie

Możliwość realizacji projektów na zamówienie

DT Container Systems to przede wszystkim zespół składający się z ludzi z pasją do projektowania, wykonawstwa i sprzedaży, co sprawia, że jesteśmy godnym uwagi partnerem biznesowym.

Naszym celem jest stworzenie alternatywy dla tradycyjnego budownictwa, dlatego w naszej ofercie jest wykonawstwo kontenerów biurowych, handlowych, socjalnych i mieszkalnych.
chevron-down linkedin facebook pinterest youtube rss twitter instagram facebook-blank rss-blank linkedin-blank pinterest youtube twitter instagram