






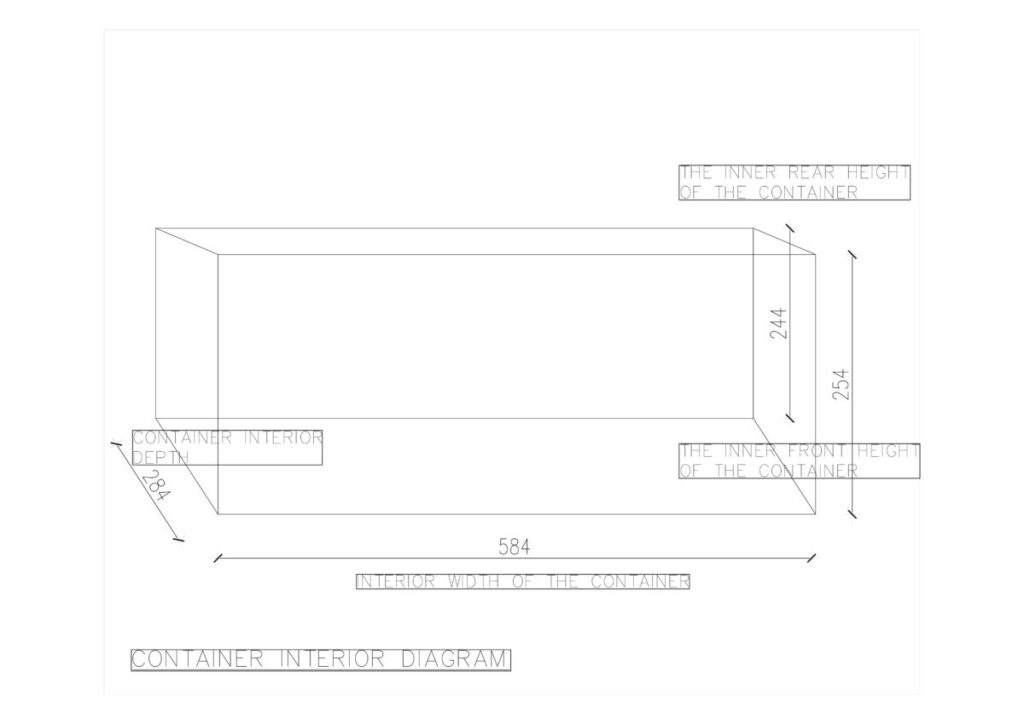
Pawilon ocieplany wykonany z płyt warstwowych styropianowych 100 mm o wymiarach 3 m x 6 m wysokość wewnątrz 2,54 m ze spadkiem na 2,44 m.
Grubość profili zastosowanych w konstrukcji stalowej:
Elewacja w kolorze srebrnym ( możliwe sugestie klienta )
Obróbka blacharska
Instalacja elektryczna
Drzwi techniczne
Witryny, okna z PCV lub aluminium ( można sugerować wymiary )
Kratka wentylacyjna
Możliwość realizacji projektów na zamówienie
Wyposażenie kontenera na zamówienie
